Plan No.231325
Specifications
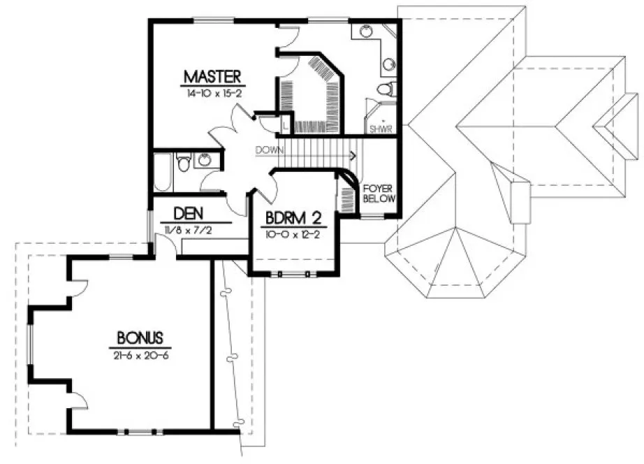
Total 2218 sq ft
- Main: 1436
- Second: 782
- Third: 0
- Loft/Bonus: 419
- Basement: 0
- Garage: 574
Rooms
- Beds: 3
- Baths: 2
- 1/2 Bath: 0
- 3/4 Bath: 1
Ceiling Height
- Main: 8'0
- Second: 8'0
- Third:
- Loft/Bonus:
- Basement:
- Garage:
Details
- Exterior Walls: 2x6
- Garage Type: doubleGarage
- Width: 72'0
- Depth: 50'0
Roof
- Max Ridge Height: 30'0
- Comments: ()
- Primary Pitch: 12/12
- Secondary Pitch: 0/12
Add to Cart
Pricing
– westhomeplanners.com
– westhomeplanners.com
– westhomeplanners.com
Elevations – westhomeplanners.com
[Back to Search Results]

833–493–0942


