Plan No.420923
Specifications
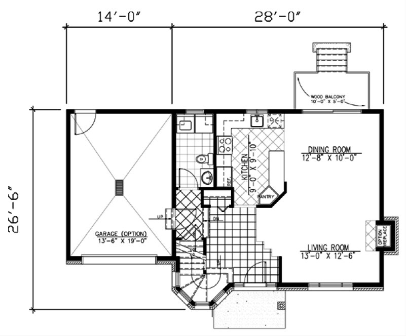
Total 1360 sq ft
- Main: 686
- Second: 674
- Third: 0
- Loft/Bonus: 0
- Basement: 686
- Garage: 256
Rooms
- Beds: 3
- Baths: 1
- 1/2 Bath: 1
- 3/4 Bath: 0
Ceiling Height
- Main: 8'0
- Second: 8'0
- Third:
- Loft/Bonus:
- Basement: 8'0
- Garage: 9'4
Details
- Exterior Walls: 2x6
- Garage Type: singleGarage
- Width: 42'0
- Depth: 26'6
Roof
- Max Ridge Height: 27'0
- Comments: ()
- Primary Pitch: 7/12
- Secondary Pitch: 10/12
Add to Cart
Pricing
– westhomeplanners.com
– westhomeplanners.com
– westhomeplanners.com
– westhomeplanners.com
– westhomeplanners.com
– westhomeplanners.com
[Back to Search Results]

833–493–0942




