Plan No.234225
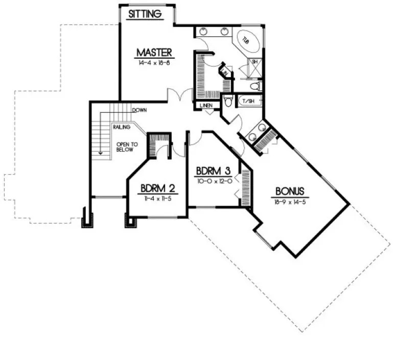
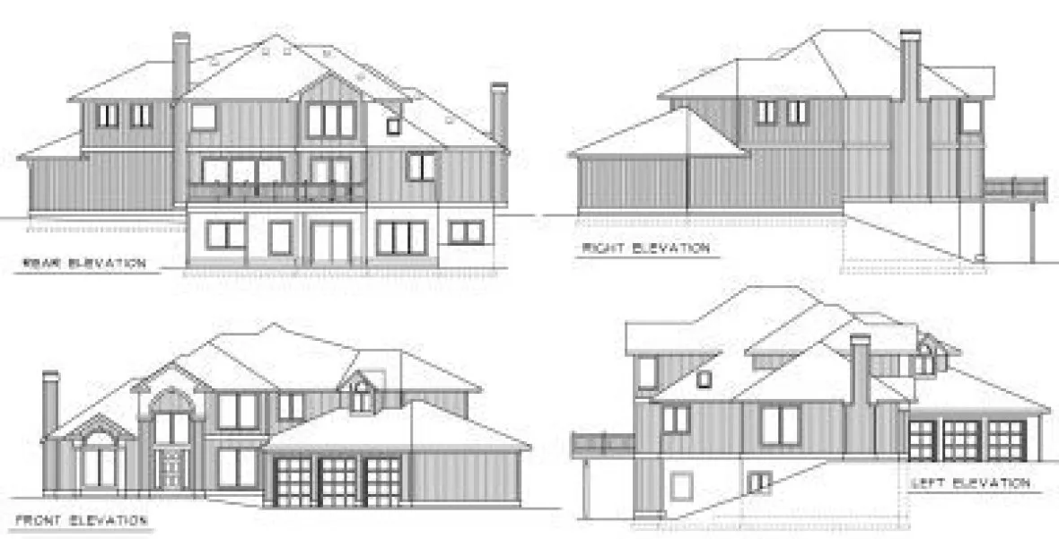
Design Comments: Bonus Room is included in square footage. Living & Dining room ceilings vault to 17'-2", Kitchen ceiling vaults to 16'-4", Master ceiling vaults to 9'-8", and Foyer ceiling - 17'-0".
Specifications
Total 2832 sq ft
- Main: 1543
- Second: 1289
- Third: 0
- Loft/Bonus: 308
- Basement: 1543
- Garage: 869
Rooms
- Beds: 3
- Baths: 2
- 1/2 Bath: 1
- 3/4 Bath: 0
Ceiling Height
- Main: 9'0
- Second: 8'0
- Third:
- Loft/Bonus:
- Basement:
- Garage:
Details
- Exterior Walls: 2x4
- Garage Type: tripleGarage
- Width: 73'11
- Depth: 64'7
Roof
- Max Ridge Height: 26'10
- Comments: (Main Floor to Peak)
- Primary Pitch: 8/12
- Secondary Pitch: 0/12
Add to Cart
Pricing
– westhomeplanners.com
– westhomeplanners.com
– westhomeplanners.com
Elevations – westhomeplanners.com
[Back to Search Results]

833–493–0942


