Plan No.238124
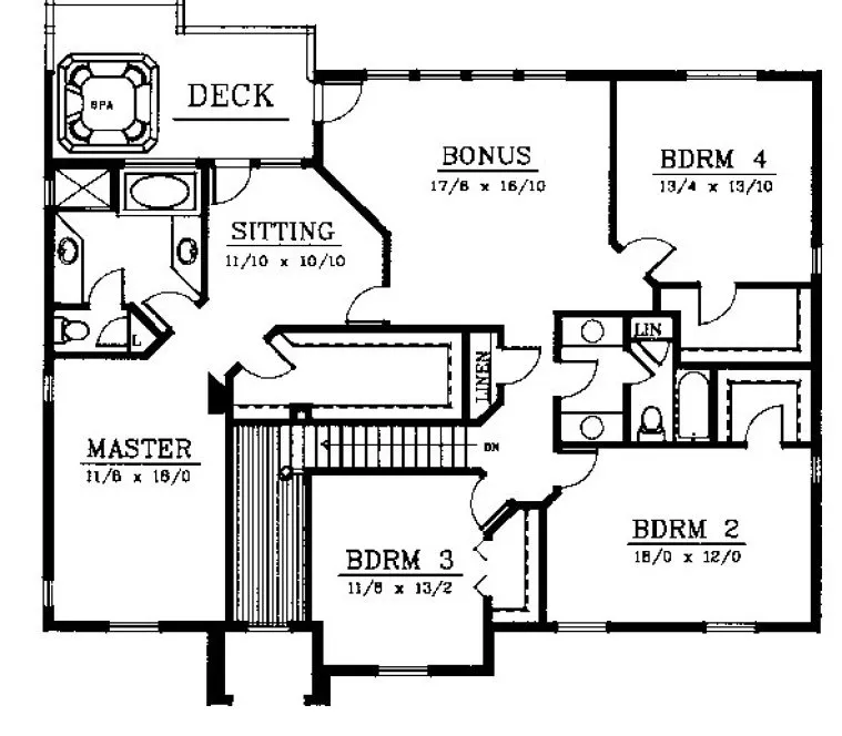
Design Comments: Foyer ceiling - 18'-0". Please note, the Bonus Room area is not included in the Total Square Footage.
Specifications
Total 3018 sq ft
- Main: 1221
- Second: 1797
- Third: 0
- Loft/Bonus: 322
- Basement: 0
- Garage: 665
Rooms
- Beds: 4
- Baths: 3
- 1/2 Bath: 0
- 3/4 Bath: 0
Ceiling Height
- Main: 9'0
- Second: 8'0
- Third:
- Loft/Bonus:
- Basement:
- Garage:
Details
- Exterior Walls: 2x6
- Garage Type: tripleGarage
- Width: 52'0
- Depth: 48'0
Roof
- Max Ridge Height: 32'8
- Comments: (Main Floor to Peak)
- Primary Pitch: 8/12
- Secondary Pitch: 0/12
Add to Cart
Pricing
– westhomeplanners.com
– westhomeplanners.com
– westhomeplanners.com
– westhomeplanners.com
[Back to Search Results]

833–493–0942


