Plan No.235249
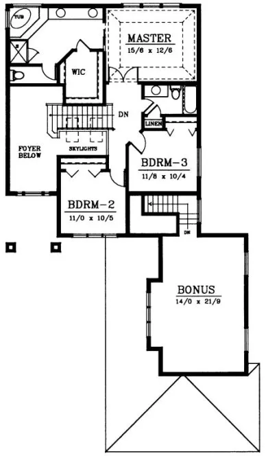
Design Comments: Dining Room ceiling - 11'-0", Kitchen & Living Room ceilings - 9'-0". Please note, the Bonus Room area is not included in the Total Square Footage.
Specifications
Total 2937 sq ft
- Main: 1675
- Second: 1262
- Third: 0
- Loft/Bonus: 380
- Basement: 0
- Garage: 746
Rooms
- Beds: 4
- Baths: 2
- 1/2 Bath: 1
- 3/4 Bath: 0
Ceiling Height
- Main: 8'0
- Second: 8'0
- Third:
- Loft/Bonus:
- Basement:
- Garage:
Details
- Exterior Walls: 2x6
- Garage Type: tripleGarage
- Width: 56'0
- Depth: 73'0
Roof
- Max Ridge Height: 25'6
- Comments: (Main Floor to Peak)
- Primary Pitch: 5/12
- Secondary Pitch: 0/12
Add to Cart
Pricing
– westhomeplanners.com
– westhomeplanners.com
– westhomeplanners.com
– westhomeplanners.com
[Back to Search Results]

833–493–0942


