Plan No.420513
Specifications
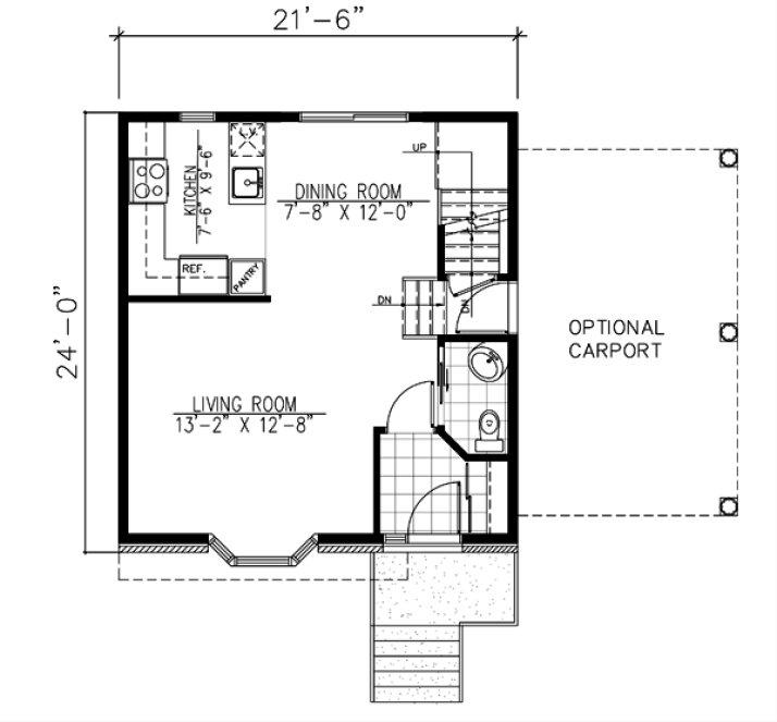
Total 1021 sq ft
- Main: 480
- Second: 541
- Third: 0
- Loft/Bonus: 0
- Basement: 480
- Garage: 0
Rooms
- Beds: 3
- Baths: 1
- 1/2 Bath: 1
- 3/4 Bath: 0
Ceiling Height
- Main: 8'0
- Second: 8'0
- Third:
- Loft/Bonus:
- Basement: 8'0
- Garage:
Details
- Exterior Walls: 2x6
- Garage Type: singleCarport
- Width: 20'0
- Depth: 24'0
Roof
- Max Ridge Height: 28'8
- Comments: ()
- Primary Pitch: 6/12
- Secondary Pitch: 10/12
Add to Cart
Pricing
– westhomeplanners.com
– westhomeplanners.com
– westhomeplanners.com
– westhomeplanners.com
– westhomeplanners.com
– westhomeplanners.com
[Back to Search Results]

833–493–0942




