Plan No.375506
Prairie Rambler
Specifications
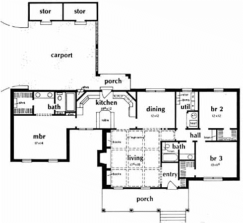
Total 1681 sq ft
- Main: 1681
 - Second: 0
 - Third: 0
 - Loft/Bonus: 0
 - Basement: 0
 - Garage: 567
 
Rooms
- Beds: 3
 - Baths: 2
 - 1/2 Bath: 0
 - 3/4 Bath: 0
 
Ceiling Height
- Main: 8'0"
 - Second:
 - Third:
 - Loft/Bonus:
 - Basement:
 - Garage:
 
Details
- Exterior Walls: 2x4
 - Garage Type: doubleCarport
 - Width: 69'10"
 - Depth: 64'0"
 
Roof
- Max Ridge Height: 18'3"
 - Comments: ()
 - Primary Pitch: 7/12
 - Secondary Pitch: 0/12
 
		Add to Cart
		Pricing
			
		
	
		
	
	
	Full Rendering – westhomeplanners.com
	
	
	
	
	MAIN Plan – westhomeplanners.com
	
	
		
		
	[Back to Search Results]

 833–493–0942
