Plan No.343501
Vaulted Owner's Suite
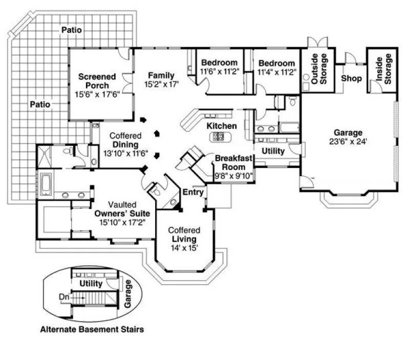
Viewing this plan, you can practically feel the warmth of the sun. The cluster of open, informal gathering spaces that fills the core is linked to a bayed living room at the front, and a spacious patio and screened porch at the rear. The vaulted owners� suite boasts a two-section bathroom and an abundance of closet space.
Specifications
Total 2414 sq ft
- Main: 2414
- Second: 0
- Third: 0
- Loft/Bonus: 0
- Basement: 0
- Garage: 659
Rooms
- Beds: 3
- Baths: 2
- 1/2 Bath: 1
- 3/4 Bath: 0
Ceiling Height
- Main:
- Second:
- Third:
- Loft/Bonus:
- Basement:
- Garage:
Details
- Exterior Walls: 2x6
- Garage Type: doubleGarage
- Width: 90'0
- Depth: 56'0
Roof
- Max Ridge Height: 20'0
- Comments: ()
- Primary Pitch: 6/12
- Secondary Pitch: 0/12
Add to Cart
Pricing
– westhomeplanners.com
– westhomeplanners.com
– westhomeplanners.com
[Back to Search Results]

833–493–0942

