Plan No.347301
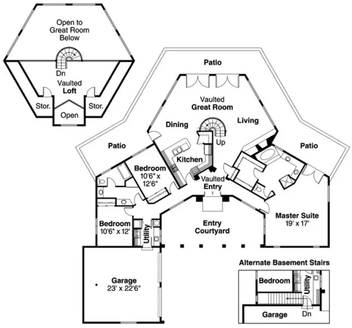
Wrap-around Patio
Abundant natural light washes into the hexagonal, vaulted great room through high, arched windows and French doors that lead out onto the wrap-around patio. The large, open kitchen has a long conversation bar and walk-in pantry. The wide loft that overlooks the great room has two deep storage areas.
Specifications
Total 2603 sq ft
- Main: 2302
- Second: 0
- Third: 0
- Loft/Bonus: 301
- Basement: 0
- Garage: 554
Rooms
- Beds: 3
- Baths: 2
- 1/2 Bath: 0
- 3/4 Bath: 0
Ceiling Height
- Main:
- Second:
- Third:
- Loft/Bonus:
- Basement:
- Garage:
Details
- Exterior Walls: 2x6
- Garage Type: doubleGarage
- Width: 75'1
- Depth: 75'8
Roof
- Max Ridge Height: 22'10
- Comments: ()
- Primary Pitch: 6/12
- Secondary Pitch: 0/12
Add to Cart
Pricing
– westhomeplanners.com
Main & Loft Floor Plans – westhomeplanners.com
Front Elevation – westhomeplanners.com
[Back to Search Results]

833–493–0942

