Plan No.344301
Attractive Vacation Retreat
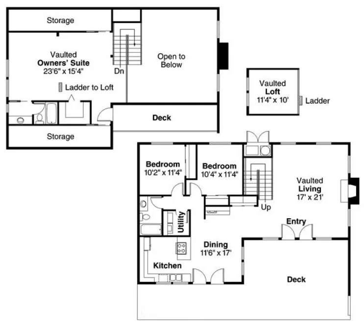
Looking like two A-frames fused together, this large, tri-level home makes an attractive vacation retreat for family and friends. Its vaulted and richly windowed living room soars to two stories high and flows into the dining room and kitchen. The vaulted owners� suite is on the second level, while a cozy loft is above.
Specifications
Total 1976 sq ft
- Main: 1308
- Second: 542
- Third: 0
- Loft/Bonus: 126
- Basement: 0
- Garage: 0
Rooms
- Beds: 3
- Baths: 2
- 1/2 Bath: 0
- 3/4 Bath: 0
Ceiling Height
- Main: 8'0
- Second: 8'0
- Third:
- Loft/Bonus: 8'0
- Basement:
- Garage:
Details
- Exterior Walls: 2x6
- Garage Type:
- Width: 50'0
- Depth: 32'0
Roof
- Max Ridge Height: 35'0
- Comments: ()
- Primary Pitch: 18/12
- Secondary Pitch: 0/12
Add to Cart
Pricing
– westhomeplanners.com
Main, 2nd & Loft Plans – westhomeplanners.com
– westhomeplanners.com
[Back to Search Results]

833–493–0942

