Plan No.341301
Estate Sized Home
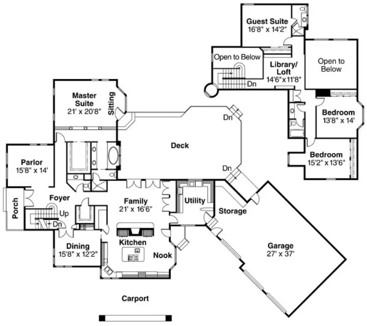
A French flavor estate-sized home with stone veneer and keystone arches. Featuring a two-story foyer and family room open to the upper level library/loft. The elegant master suite has an elevated sleeping area, spa tub, and deck access.
Specifications
Total 4015 sq ft
- Main: 2733
- Second: 1282
- Third: 0
- Loft/Bonus: 0
- Basement: 2733
- Garage: 1161
Rooms
- Beds: 4
- Baths: 2
- 1/2 Bath: 1
- 3/4 Bath: 1
Ceiling Height
- Main: 9'0
- Second: 8'0
- Third:
- Loft/Bonus:
- Basement: 8'0
- Garage:
Details
- Exterior Walls: 2x6
- Garage Type: tripleGarage
- Width: 116'1
- Depth: 82'0
Roof
- Max Ridge Height: 31'0
- Comments: ()
- Primary Pitch: 10/12
- Secondary Pitch: 0/12
Add to Cart
Pricing
Full Rendering – westhomeplanners.com
Main & 2nd Floor Plans – westhomeplanners.com
REAR Elevation – westhomeplanners.com
[Back to Search Results]

833–493–0942

