Plan No.340201
Curved Staircase
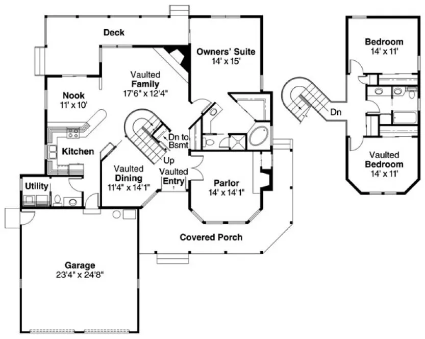
Its gracefully curved central stairway is open to the family room and dining room, both vaulted. A fireplace nestles into a rear corner, and the kitchen has an eating bar. Sliders in the sunny nook offer access to a rear deck. Owners? suite amenities include: a shower, spa tub, walk-in closet, and private toilet.
Specifications
Total 2110 sq ft
- Main: 1560
- Second: 550
- Third: 0
- Loft/Bonus: 0
- Basement: 1560
- Garage: 600
Rooms
- Beds: 3
- Baths: 0
- 1/2 Bath: 1
- 3/4 Bath: 0
Ceiling Height
- Main: 8'0
- Second: 8'0
- Third:
- Loft/Bonus:
- Basement: 8'0
- Garage:
Details
- Exterior Walls: 2x6
- Garage Type: doubleGarage
- Width: 55'0
- Depth: 64'0
Roof
- Max Ridge Height: 24'9
- Comments: ()
- Primary Pitch: 4/12
- Secondary Pitch: 0/12
Add to Cart
Pricing
– westhomeplanners.com
Main & 2nd Floor Plans – westhomeplanners.com
– westhomeplanners.com
[Back to Search Results]

833–493–0942

