Plan No.342101
Second Floor Balcony
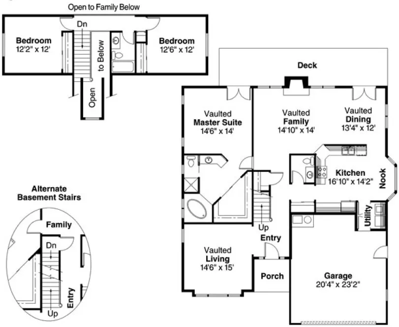
There are extensive vaulted ceilings in lower level rooms, a bayed nook, large kitchen which is partially open to the family room, and a second floor balcony that overlooks the family room and entry.
Specifications
Total 2102 sq ft
- Main: 1603
- Second: 499
- Third: 0
- Loft/Bonus: 0
- Basement: 0
- Garage: 465
Rooms
- Beds: 3
- Baths: 2
- 1/2 Bath: 1
- 3/4 Bath: 0
Ceiling Height
- Main: 8'0
- Second: 8'0
- Third:
- Loft/Bonus:
- Basement:
- Garage:
Details
- Exterior Walls: 2x6
- Garage Type: doubleGarage
- Width: 46'0
- Depth: 53'0
Roof
- Max Ridge Height: 24'0
- Comments: ()
- Primary Pitch: 8/12
- Secondary Pitch: 0/12
Add to Cart
Pricing
– westhomeplanners.com
Main & 2nd Floor Plans – westhomeplanners.com
– westhomeplanners.com
[Back to Search Results]

833–493–0942

