Plan No.341001
Porch Wraps Two Sides
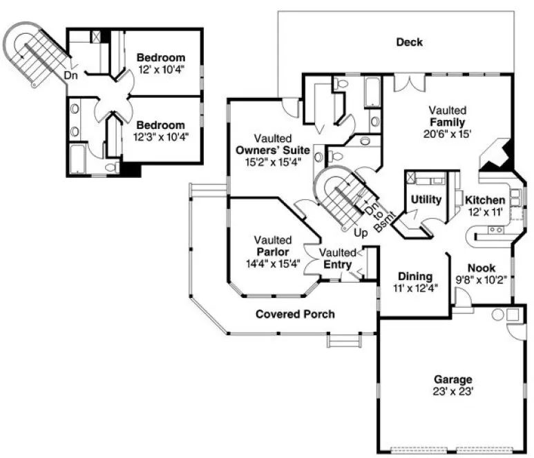
A wide railed porch wraps around two sides of this traditional country-style home. Inside, vaulted ceilings expand the entry, parlor, family room, and owners? suite. The family room has a fireplace and an open link to the kitchen and nook. The wide rear deck is accessible via the family room and owners? suite.
Specifications
Total 2169 sq ft
- Main: 1656
- Second: 513
- Third: 0
- Loft/Bonus: 0
- Basement: 0
- Garage: 541
Rooms
- Beds: 3
- Baths: 2
- 1/2 Bath: 1
- 3/4 Bath: 0
Ceiling Height
- Main: 8'0
- Second: 8'0
- Third:
- Loft/Bonus:
- Basement:
- Garage:
Details
- Exterior Walls: 2x6
- Garage Type: doubleGarage
- Width: 54'0
- Depth: 61'0
Roof
- Max Ridge Height: 25'6
- Comments: ()
- Primary Pitch: 6/12
- Secondary Pitch: 0/12
Add to Cart
Pricing
– westhomeplanners.com
Main & 2nd Floor Plans – westhomeplanners.com
– westhomeplanners.com
[Back to Search Results]

833–493–0942

