Plan No.443801
Affordable Country Home
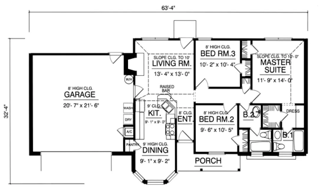
This very affordable one story home has a large living room with a warm fireplace. The large pass thru kitchen features a convenient raised bar, large walk in pantry and access to the bayed dining room. The master suite boasts a ten foot ceiling and a separate dressing room leads to a large walk in closet. Two additional bedrooms are served by a split bath and features ample closet space.
Specifications
Total 1083 sq ft
- Main: 1083
- Second: 0
- Third: 0
- Loft/Bonus: 0
- Basement: 0
- Garage: 528
Rooms
- Beds: 3
- Baths: 2
- 1/2 Bath: 0
- 3/4 Bath: 0
Ceiling Height
- Main: 10'0
- Second:
- Third:
- Loft/Bonus:
- Basement:
- Garage:
Details
- Exterior Walls: 2x4
- Garage Type: doubleGarage
- Width: 63'4
- Depth: 32'4
Roof
- Max Ridge Height: 17'4
- Comments: ()
- Primary Pitch: 8/12
- Secondary Pitch: 0/12
Add to Cart
Pricing
– westhomeplanners.com
– westhomeplanners.com
– westhomeplanners.com
[Back to Search Results]

833–493–0942

