Plan No.294099
Specifications
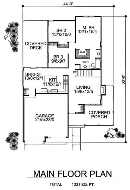
Total 1231 sq ft
- Main: 1231
- Second: 0
- Third: 0
- Loft/Bonus: 0
- Basement: 1231
- Garage: 0
Rooms
- Beds: 3
- Baths: 1
- 1/2 Bath: 0
- 3/4 Bath: 0
Ceiling Height
- Main:
- Second:
- Third:
- Loft/Bonus:
- Basement:
- Garage:
Details
- Exterior Walls: 2x4
- Garage Type: doubleGarage
- Width: 44'0
- Depth: 61'0
Roof
- Max Ridge Height: 18'0"
- Comments: ()
- Primary Pitch: 0/12
- Secondary Pitch: 0/12
Add to Cart
Pricing
– westhomeplanners.com
– westhomeplanners.com
[Back to Search Results]

833–493–0942
