Plan No.297522
Specifications
Total 1729 sq ft
- Main: 823
- Second: 904
- Third: 0
- Loft/Bonus: 0
- Basement: 709
- Garage: 579
Rooms
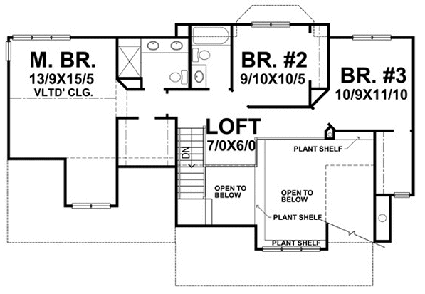
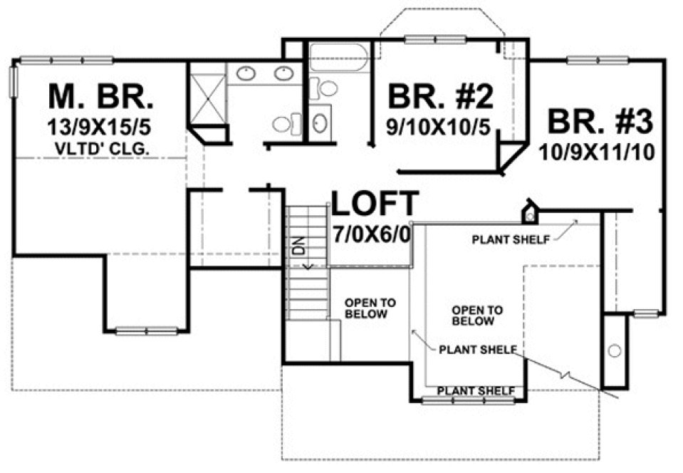
- Beds: 3
- Baths: 2
- 1/2 Bath: 1
- 3/4 Bath: 0
Ceiling Height
- Main: 8'0
- Second: 8'0
- Third:
- Loft/Bonus:
- Basement:
- Garage:
Details
- Exterior Walls: 2x4
- Garage Type: doubleGarage
- Width: 52'8
- Depth: 36'8
Roof
- Max Ridge Height: 28'10
- Comments: ()
- Primary Pitch: 10/12
- Secondary Pitch: 4/12
Add to Cart
Pricing
– westhomeplanners.com
– westhomeplanners.com
– westhomeplanners.com
[Back to Search Results]

833–493–0942

