Plan No.292122
Specifications
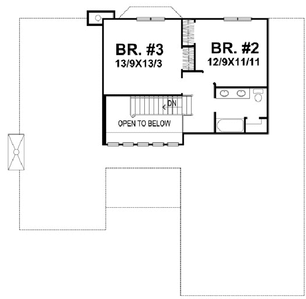
Total 2125 sq ft
- Main: 1616
- Second: 509
- Third: 0
- Loft/Bonus: 0
- Basement: 1616
- Garage: 420
Rooms
- Beds: 3
- Baths: 2
- 1/2 Bath: 1
- 3/4 Bath: 0
Ceiling Height
- Main: 8'0"
- Second: 8'0"
- Third:
- Loft/Bonus:
- Basement:
- Garage:
Details
- Exterior Walls: ICF
- Garage Type: doubleGarage
- Width: 50'8"
- Depth: 51'4"
Roof
- Max Ridge Height: 26'0"
- Comments: ()
- Primary Pitch: 8/12
- Secondary Pitch: 10/12
Add to Cart
Pricing
Full Rendering – westhomeplanners.com
MAIN Plan – westhomeplanners.com
SECOND Plan – westhomeplanners.com
[Back to Search Results]

833–493–0942

