Plan No.291259
Practical Dream
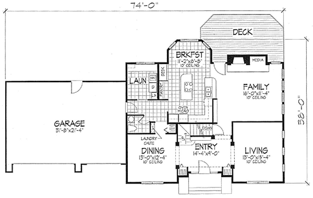
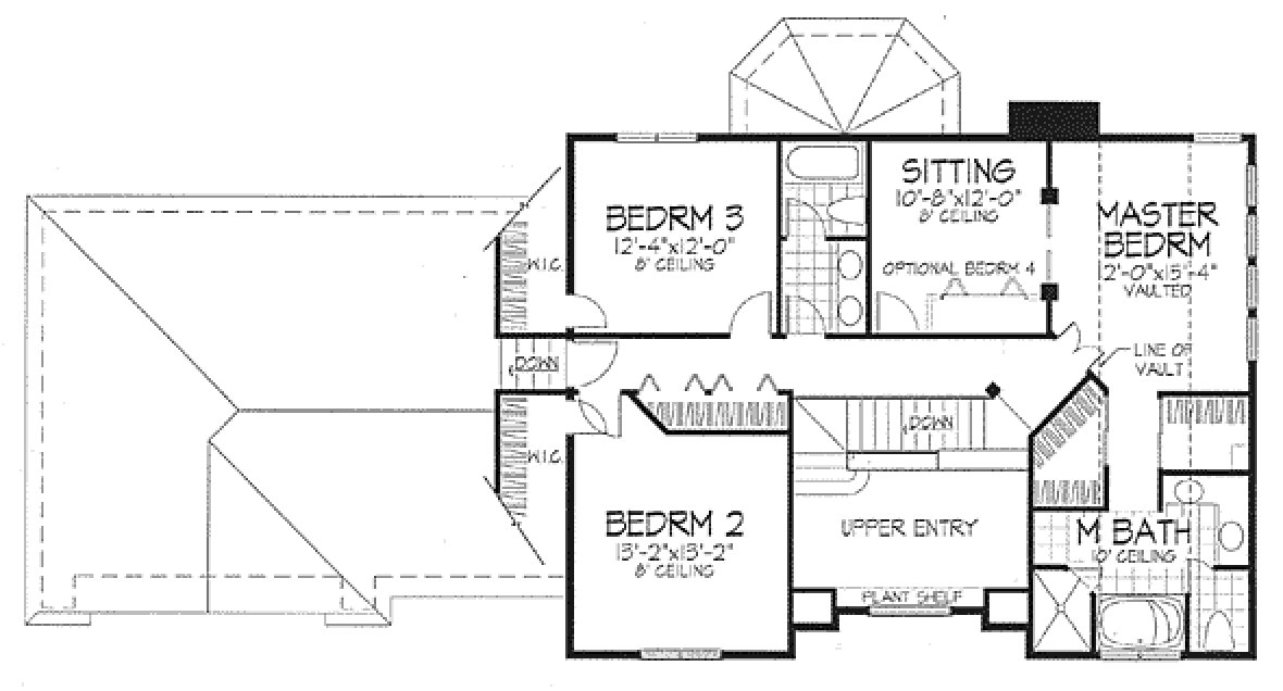
This high-style stucco home has an assortment of exterior elements that give it a Southern flavor. Inside you'll find formal spaces that are quiet and removed from the busy activity areas. Overlooking a large deck, the family room offers comfortable relaxation with a warm fireplace and a built-in media center. The kitchen is superb with its island cooktop, serving counter, pantry and work desk. The bright breakfast bay is a great way to start your day. Walk-in closets are included with each upstairs bedroom. The master bedroom has a private bath and an adjoining sitting room.
Specifications
Total 2564 sq ft
- Main: 1322
- Second: 1242
- Third: 0
- Loft/Bonus: 0
- Basement: 1322
- Garage: 675
Rooms
- Beds: 3
- Baths: 2
- 1/2 Bath: 1
- 3/4 Bath: 0
Ceiling Height
- Main:
- Second:
- Third:
- Loft/Bonus:
- Basement:
- Garage:
Details
- Exterior Walls: 2x6
- Garage Type: tripleGarage
- Width: 74'0"
- Depth: 38'0"
Roof
- Max Ridge Height: 29'0"
- Comments: ()
- Primary Pitch: 0/12
- Secondary Pitch: 0/12
Add to Cart
Pricing
– westhomeplanners.com
– westhomeplanners.com
– westhomeplanners.com
[Back to Search Results]

833–493–0942

