Plan No.292117
Extraordinary Split-Level
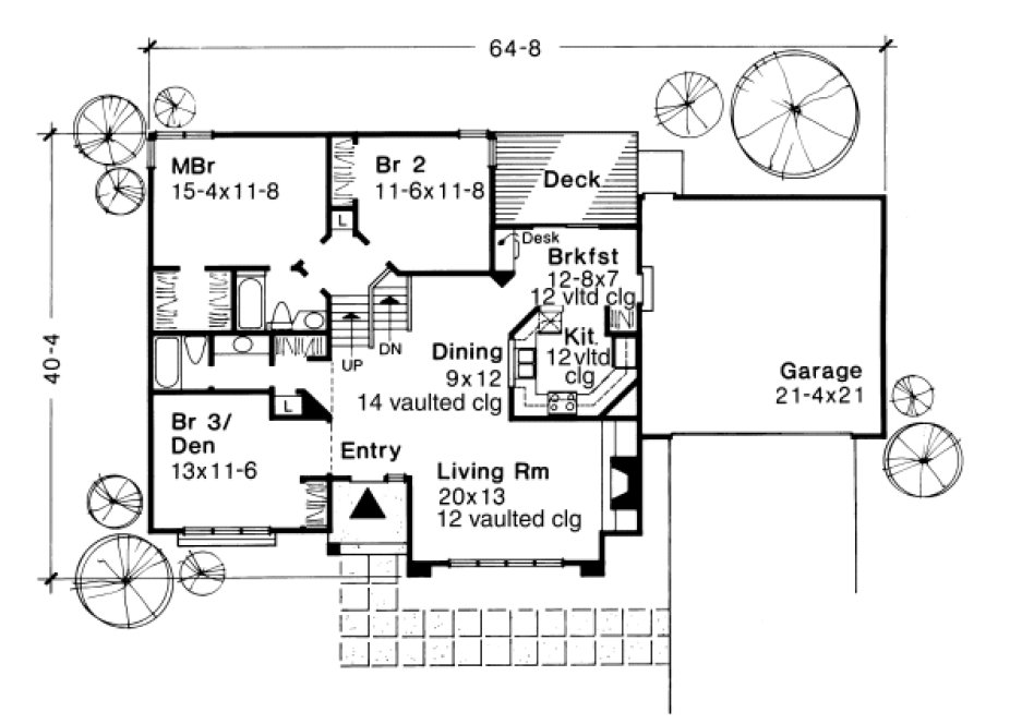
This design boasts a striking arched window in an inviting facade that introduces an extraordinary split-level floor plan. The recessed entry opens into the expansive living room, with its fabulous windows, nice fireplace and breathtaking 12-ft. vaulted ceiling. The dining room, which features a 14-ft. vaulted ceiling, expands the open living area and lends an air of spaciousness to the entire main floor. The kitchen is a gourmet's dream, offering a wraparound counter, a double sink and a pass-through to the dining room. A 12-ft. vaulted ceiling is shared with the sunny breakfast room, which shows off a built-in desk and sliding-door access to a backyard deck. The sizable master bedroom, a second bedroom and a shared bath are several steps up from the main level, creating a sense of privacy. The third bedroom makes a great den, playroom, office or guest room.
Specifications
Total 1452 sq ft
- Main: 1452
- Second: 0
- Third: 0
- Loft/Bonus: 0
- Basement: 1452
- Garage: 448
Rooms
- Beds: 2
- Baths: 2
- 1/2 Bath: 0
- 3/4 Bath: 0
Ceiling Height
- Main:
- Second:
- Third:
- Loft/Bonus:
- Basement:
- Garage:
Details
- Exterior Walls: 2x4
- Garage Type: doubleGarage
- Width: 64'8"
- Depth: 40'4"
Roof
- Max Ridge Height: 22'0"
- Comments: ()
- Primary Pitch: 6/12
- Secondary Pitch: 8/12

833–493–0942
