Plan No.210012
Elegant Brick Home
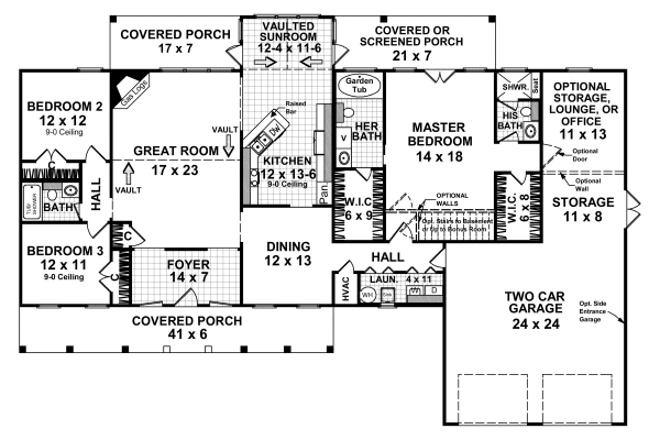
This elegant brick home features spacious living area, Classic exterior with a master suite like everyone needs. A his and her bath with enormous closets. Her bath has a Jet Tub and his has a large walk-in shower. There is an adjoining optional study/lounge/3rd car space. An optional covered rear porch or screened-in porch. The great room and the sunroom are vaulted with gas logs and windows on the rear with transoms above for plenty of light. Split plan. A long needed design to keep peace in the family with a wonderful master suite, and a kitchen with all the amenities. Raised breakfast bar and separate dining.
Specifications
Total 2100 sq ft
- Main: 2100
- Second: 0
- Third: 0
- Loft/Bonus: 0
- Basement: 2100
- Garage: 569
Rooms
- Beds: 3
- Baths: 3
- 1/2 Bath: 0
- 3/4 Bath: 0
Ceiling Height
- Main: 9'0
- Second:
- Third:
- Loft/Bonus:
- Basement: 8'0
- Garage: 10'4
Details
- Exterior Walls: 2x4
- Garage Type: 2 Car Garage
- Width: 79'4
- Depth: 53'6
Roof
- Max Ridge Height: 26'4
- Comments: (Main Floor to Peak)
- Primary Pitch: 10/12
- Secondary Pitch: 12/12
Add to Cart
Pricing
Full Rendering – westhomeplanners.com
MAIN Plan – westhomeplanners.com
SECOND Plan – westhomeplanners.com
REAR Elevation – westhomeplanners.com
[Back to Search Results]

833–493–0942


