Plan No.213152
Much to Offer
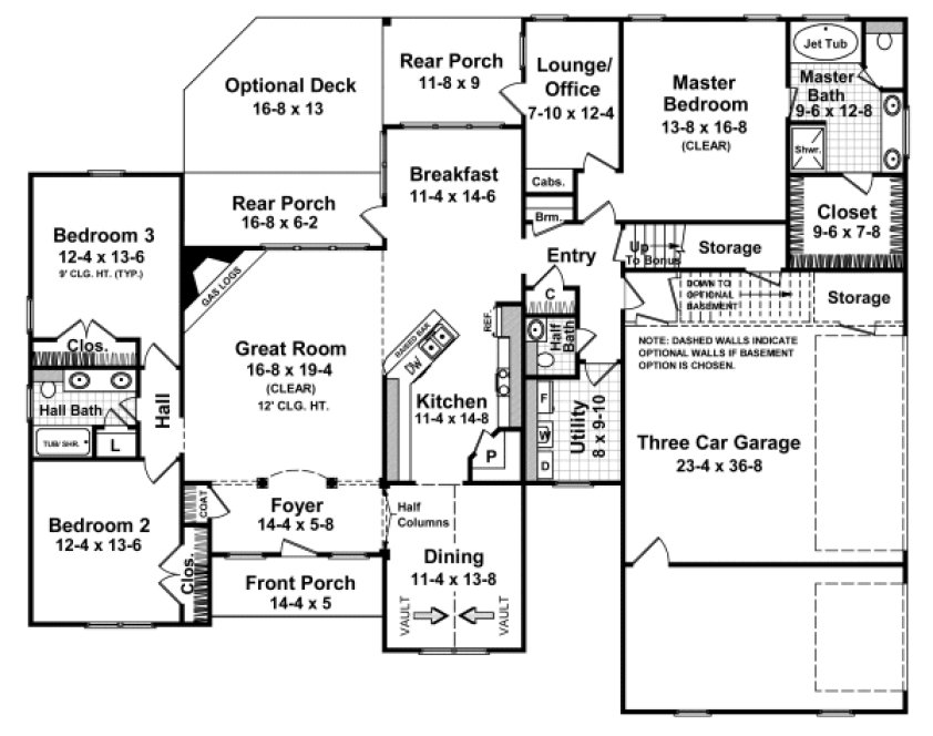
Beautiful versatile plan with 3-4 bedrooms, 2� to 3 baths and a 3 car garage. Open, split bedroom plan, with large bedrooms. Master suite has an office/lounge, jet tub, large walk-in shower, large walk-in closet, and a privacy porch. Great room has a 12' raised ceiling and a fireplace. Kitchen has walk-in pantry and raised bar. The plan allows for several spaces for small groups to gather (great room, breakfast, raised bar, rear porch, covered porch, lounge/office, and dining). A plan with much to offer.
Specifications
Total 2251 sq ft
- Main: 2251
- Second: 0
- Third: 0
- Loft/Bonus: 0
- Basement: 2251
- Garage: 914
Rooms
- Beds: 3
- Baths: 2
- 1/2 Bath: 1
- 3/4 Bath: 0
Ceiling Height
- Main: 9'0
- Second:
- Third:
- Loft/Bonus:
- Basement: 8'0
- Garage: 10'4
Details
- Exterior Walls: 2x4
- Garage Type: tripleGarage
- Width: 73'8
- Depth: 58'4
Roof
- Max Ridge Height: 22'3
- Comments: ()
- Primary Pitch: 8/12
- Secondary Pitch: 10/12
Add to Cart
Pricing
– westhomeplanners.com
– westhomeplanners.com
– westhomeplanners.com
– westhomeplanners.com
[Back to Search Results]

833–493–0942


