Plan No.210302
Four-bedroom Beauty
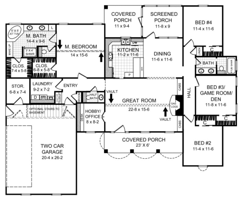
A great plan for the growing family. This four-bedroom beauty should fulfill the needs of many with the optional bedroom/game room/den, and the flex space (hobby/office). An open plan, split bedroom layout provides good use of space. The master suite is packed with features including a jet tub, dual lavatories, oversized shower, his and her walk-in closets, and a vaulted ceiling in the Master Bedroom. Great plan for socializing with friends and family including kitchen raised bar, great room by the gas logs, front porch, rear grilling porch, and even a screened porch. Oversized garage and unheated storage are a plus. The exterior traditional styling with brick and contrasting trim provide an architectural presentation that looks great now and will endure to keep your investment looking great for years to come!
Specifications
Total 2000 sq ft
- Main: 2000
- Second: 0
- Third: 0
- Loft/Bonus: 0
- Basement: 2000
- Garage: 553
Rooms
- Beds: 4
- Baths: 2
- 1/2 Bath: 1
- 3/4 Bath: 0
Ceiling Height
- Main: 9'0
- Second:
- Third:
- Loft/Bonus:
- Basement: 8'0
- Garage: 10'4
Details
- Exterior Walls: 2x4
- Garage Type:
- Width: 68'0
- Depth: 55'8
Roof
- Max Ridge Height: 22'9
- Comments: ()
- Primary Pitch: 8/12
- Secondary Pitch: 12/12

833–493–0942

