Plan No.195147
Victorian Duplex Masterpiece
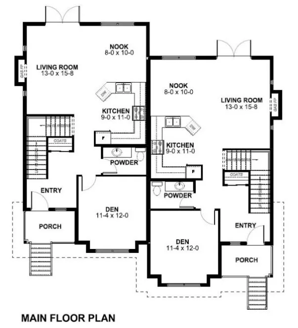
This gorgeous Victorian style duplex combines a classic look with a modern layout. The open living area, large bedrooms, master suite with walk in closet and en suite, and large garage workshop make for a very livable home. The attractive turret on the front of the house, along with the covered porches and Victorian details gives it excellent road appeal.
Specifications
Total 3690 sq ft
- Main: 826
- Second: 823
- Third: 0
- Loft/Bonus: 0
- Basement: 196
- Garage: 662
Rooms
- Beds: 3
- Baths: 2
- 1/2 Bath: 1
- 3/4 Bath: 0
Ceiling Height
- Main: 9'0
- Second: 8'0
- Third:
- Loft/Bonus:
- Basement: 8'0
- Garage: 9'4
Details
- Exterior Walls: 2x6
- Garage Type: singleGarage
- Width: 44'0
- Depth: 45'0
Roof
- Max Ridge Height: 35'11
- Comments: ()
- Primary Pitch: 6/12
- Secondary Pitch: 9/12
Add to Cart
Pricing
– westhomeplanners.com
– westhomeplanners.com
– westhomeplanners.com
– westhomeplanners.com
– westhomeplanners.com
– westhomeplanners.com
[Back to Search Results]

833–493–0942




