Plan No.298149
European Eminence
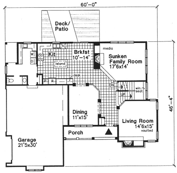
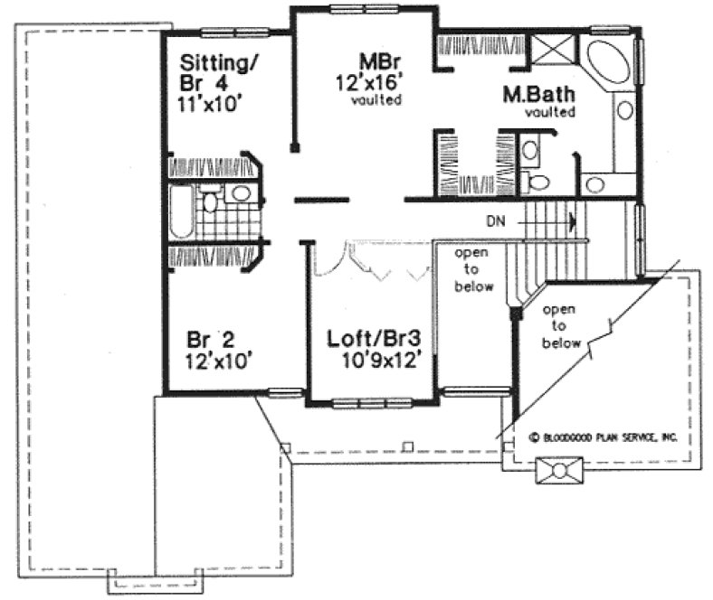
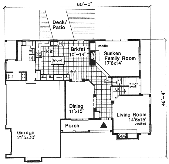
A focal point chimney with transom windows above combines with a covered front porch and brick, lap and stucco siding to recall a European era. The formal living room greets arriving guests with its vaulted ceiling, fireplace with wood box and corner transoms. The formal dining room has a sense of elegance created by multiple columns. The island kitchen overlooks the breakfast room with a sunken family room with second fireplace and media wall just beyond. There are four bedrooms upstairs, including a vaulted master suite with dual closets and a splashy private bath.
Specifications
Total 2533 sq ft
- Main: 1435
- Second: 1098
- Third: 0
- Loft/Bonus: 0
- Basement: 1435
- Garage: 0
Rooms
- Beds: 2
- Baths: 2
- 1/2 Bath: 1
- 3/4 Bath: 0
Ceiling Height
- Main:
- Second:
- Third:
- Loft/Bonus:
- Basement:
- Garage:
Details
- Exterior Walls: 2x6
- Garage Type: tripleGarage
- Width: 60'0"
- Depth: 46'4"
Roof
- Max Ridge Height: 29'0"
- Comments: ()
- Primary Pitch: 0/12
- Secondary Pitch: 0/12
Add to Cart
Pricing
– westhomeplanners.com
– westhomeplanners.com
– westhomeplanners.com
– westhomeplanners.com
[Back to Search Results]

833–493–0942


