Plan No.293239
Special Flair
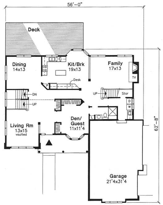
Striking windows and gable details give this home flair. The sun-drenched living room off the foyer features a vaulted ceiling. The central kitchen includes an island workspace and a bayed breakfast nook with French-door access to the deck.
Specifications
Total 3002 sq ft
- Main: 1683
- Second: 1319
- Third: 0
- Loft/Bonus: 0
- Basement: 1683
- Garage: 0
Rooms
- Beds: 4
- Baths: 3
- 1/2 Bath: 0
- 3/4 Bath: 0
Ceiling Height
- Main:
- Second:
- Third:
- Loft/Bonus:
- Basement:
- Garage:
Details
- Exterior Walls: 2x6
- Garage Type: tripleGarage
- Width: 56'0"
- Depth: 62'8"
Roof
- Max Ridge Height: 29'0"
- Comments: ()
- Primary Pitch: 0/12
- Secondary Pitch: 0/12
Add to Cart
Pricing
– westhomeplanners.com
– westhomeplanners.com
– westhomeplanners.com
[Back to Search Results]

833–493–0942

