Plan No.295139
Affordable Charm
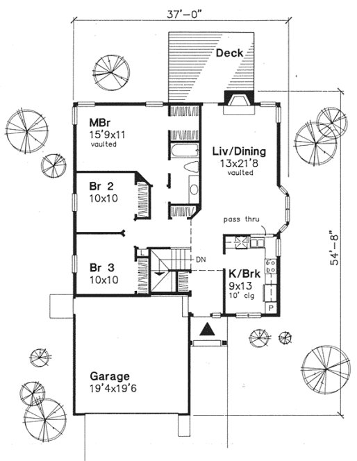
Soaring ceilings and attention to detail highlight this efficient floor plan. The sunny eat-in kitchen boasts a 10-ft. ceiling and a built-in pantry. The living room features an energy-efficient fireplace and French door access to an inviting rear deck. A dramatic 14-ft. ceiling soars above the living and dining rooms. The spacious master bedroom boasts an 11-ft. vaulted ceiling.
Specifications
Total 1227 sq ft
- Main: 1227
- Second: 0
- Third: 0
- Loft/Bonus: 0
- Basement: 12227
- Garage: 0
Rooms
- Beds: 3
- Baths: 1
- 1/2 Bath: 0
- 3/4 Bath: 0
Ceiling Height
- Main:
- Second:
- Third:
- Loft/Bonus:
- Basement:
- Garage:
Details
- Exterior Walls: 2x6
- Garage Type: doubleGarage
- Width: 37'0
- Depth: 55'0
Roof
- Max Ridge Height: 16'0
- Comments: ()
- Primary Pitch: 0/12
- Secondary Pitch: 0/12
Add to Cart
Pricing
– westhomeplanners.com
– westhomeplanners.com
[Back to Search Results]

833–493–0942
