Plan No.212281
Variety of Features
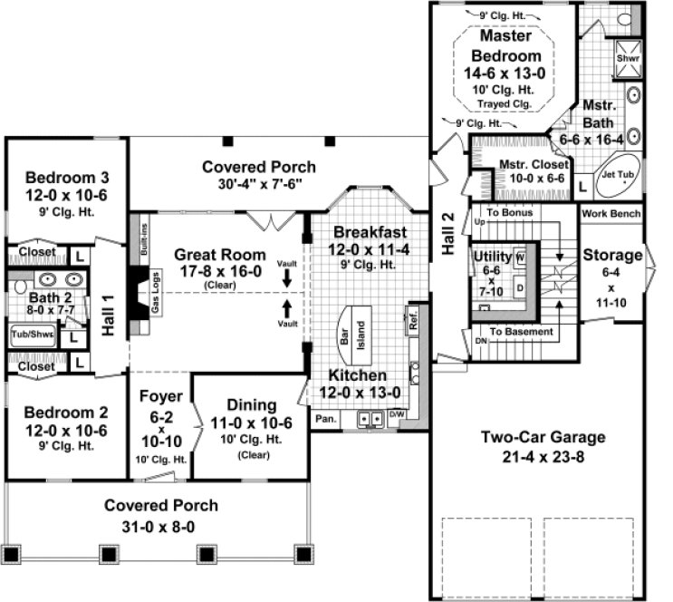
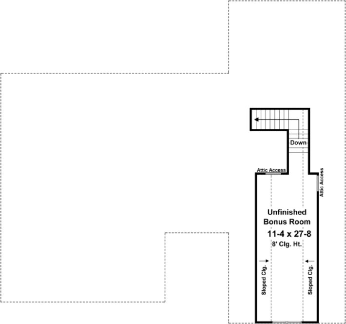
Looking for the house that has it all? Then look no further. This beautiful Craftsman design features all the things that make a house a home. A breakfast area and raised bar all provide spaces for those family meals with close access to the fully equipped kitchen. The kitchen is also easily accessible from the separate formal dining room. The great room includes gas logs, a vaulted ceiling, and beautiful views to the covered rear porch beyond. The master bedroom also features trayed ceilings, while the master bathroom leaves nothing to be desired. The garage features a large storage area that can be used as a workshop. The bonus room provides space for future expansion or for additional storage. This is the perfect home for you and your family!
Specifications
Total 1816 sq ft
- Main: 1816
- Second: 0
- Third: 0
- Loft/Bonus: 357
- Basement: 1816
- Garage: 554
Rooms
- Beds: 3
- Baths: 2
- 1/2 Bath: 0
- 3/4 Bath: 0
Ceiling Height
- Main: 9'0
- Second:
- Third:
- Loft/Bonus:
- Basement: 8'0
- Garage: 10'4
Details
- Exterior Walls: 2x6
- Garage Type: doubleGarage
- Width: 65'0
- Depth: 60'8
Roof
- Max Ridge Height: 21'7
- Comments: (Main Floor to Peak)
- Primary Pitch: 8/12
- Secondary Pitch: 0/12

833–493–0942









