Plan No.212051
Beauty and Function
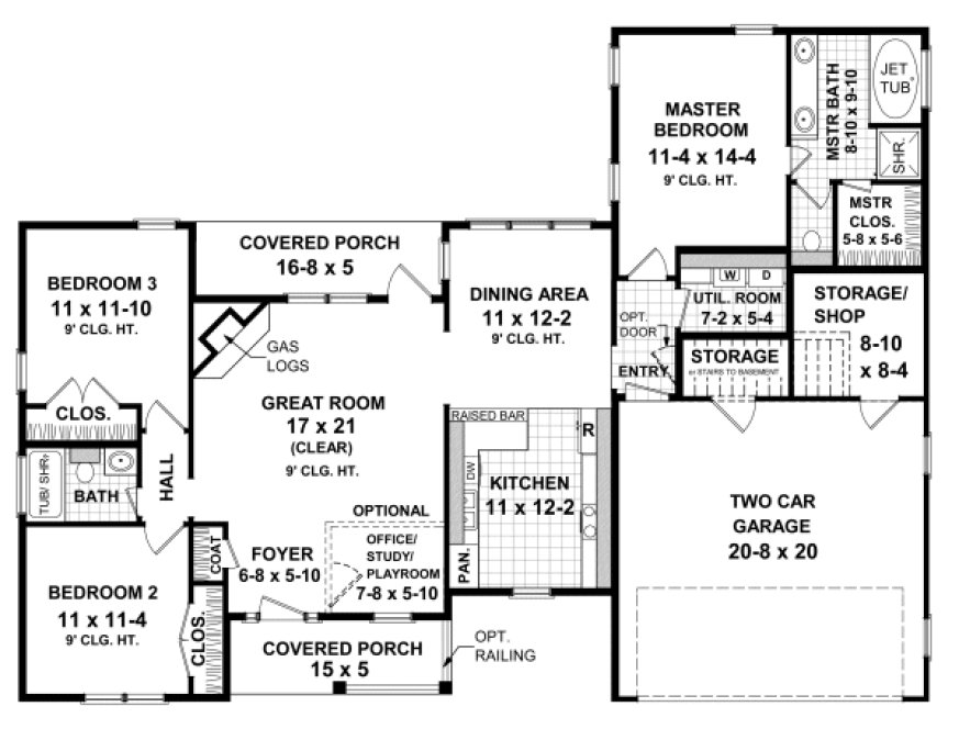
This uniquely designed house has both beauty and great function. It is simple to build, yet has created curb appeal by the use of contrasting building materials, color, overlapping planes, shades and shadows. The master suite is large for a house of this size with jet tub, walk-in shower, walk-in closet, compartmented toilet, and dual lavatories. A large storage/shop and an exterior storage area is a plus for us who always need more storage. The kitchen is spacious and has a raised bar for conversation with friends, and a pantry. A small office/study/playroom is a quite useful flexible space. The great room has gas logs, plenty of light and views to the rear, a foyer, and a coat closet for your guests. This is a split bedroom plan with open living spaces we feel is a unique value in design.
Specifications
Total 1502 sq ft
- Main: 1502
- Second: 0
- Third: 0
- Loft/Bonus: 0
- Basement: 1502
- Garage: 431
Rooms
- Beds: 3
- Baths: 2
- 1/2 Bath: 0
- 3/4 Bath: 0
Ceiling Height
- Main: 9'0
- Second:
- Third:
- Loft/Bonus:
- Basement: 8'0
- Garage: 10'4
Details
- Exterior Walls: 2x6
- Garage Type: doubleGarage
- Width: 61'8
- Depth: 45'8
Roof
- Max Ridge Height: 20'9
- Comments: (Main Floor to Peak)
- Primary Pitch: 8/12
- Secondary Pitch: 0/12

833–493–0942

