Plan No.297039
Delightful Duplex
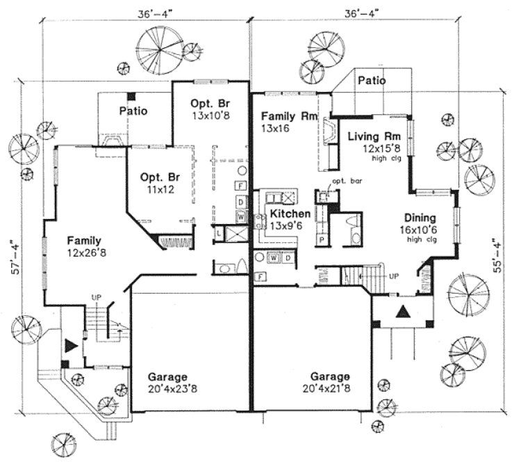
This delightful exterior of this well-planned duplex will blend into any neighborhood. The unit on the left features a split-entry that leads up the main floor. Here, the kitchen boasts a built-in desk, while the living room showcases a vaulted ceiling. The unit on the right opens directly to the main floor, which includes separate formal and informal living areas. Area of each unit is as follows: Left unit has a 637 sq. ft. main floor and 1433 sq. ft. second for a total of 2070 sq. ft.; Right unit has a main floor of 998 sq. ft. and a second of 893 for a total of 1891 sq. ft.
Specifications
Total 3961 sq ft
- Main: 0
- Second: 0
- Third: 0
- Loft/Bonus: 0
- Basement: 0
- Garage: 0
Rooms
- Beds: 2
- Baths: 2
- 1/2 Bath: 1
- 3/4 Bath: 0
Ceiling Height
- Main:
- Second:
- Third:
- Loft/Bonus:
- Basement:
- Garage:
Details
- Exterior Walls: 2x4
- Garage Type: doubleGarage
- Width: 73'0
- Depth: 56'0
Roof
- Max Ridge Height: 29'0
- Comments: ()
- Primary Pitch: 0/12
- Secondary Pitch: 0/12
Add to Cart
Pricing
– westhomeplanners.com
– westhomeplanners.com
– westhomeplanners.com
[Back to Search Results]

833–493–0942

