Plan No.296129
Timeless Style
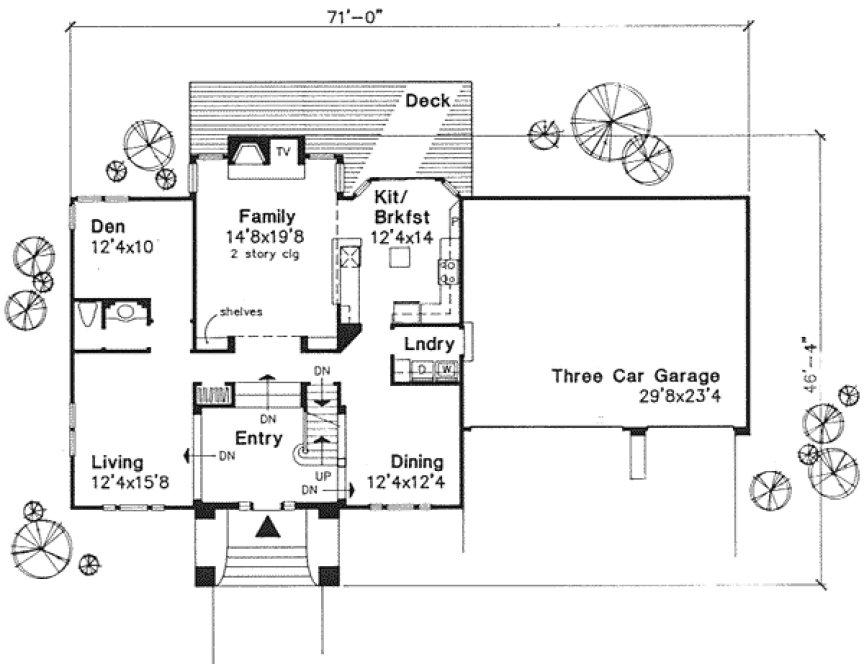
The dramatic two-story entry porch and stately pillars add a timeless style and presence to this exciting two-story. The interior is pleasantly updated with features designed for the '90s. Open living areas extend from the unique raised entry, which offers direct access to each. The formal living room and dining room sit on either side, while a spacious two-story family room with a fireplace and a built-in entertainment center is showcased ahead. A handy snack counter extends from the adjoining kitchen, which also features a bayed breakfast nook, a pantry and sliding glass doors to the deck. A quiet den or extra bedroom is located at the other end of the home, near a half-bath. The upper-floor balcony overlooks the family room and foyer, and connects two secondary bedrooms to a large master suite. The master bedroom boasts a tray ceiling and corner windows. The master bath has an oval tub and a separate shower. The big, skylighted bonus room above the garage could serve as a playroom, hobby room or extra bedroom.
Specifications
Total 2416 sq ft
- Main: 1416
- Second: 1000
- Third: 0
- Loft/Bonus: 0
- Basement: 1416
- Garage: 692
Rooms
- Beds: 3
- Baths: 2
- 1/2 Bath: 1
- 3/4 Bath: 0
Ceiling Height
- Main:
- Second:
- Third:
- Loft/Bonus:
- Basement:
- Garage:
Details
- Exterior Walls: 2x4
- Garage Type: tripleGarage
- Width: 71'0"
- Depth: 46'4"
Roof
- Max Ridge Height:
- Comments: ()
- Primary Pitch: 0/12
- Secondary Pitch: 0/12

833–493–0942

