Plan No.293129
Raised in the Country
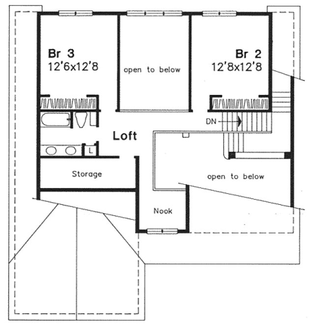
This wide-open country home features raised 9-ft. ceilings, a vaulted living room and a two-story-high dining room. The covered front porch flows into the recessed, sidelighted entry. The living room's ceiling rises to a height of 17 feet. The island kitchen has a bright sink, patio access and a handy pantry. The airy dining room is introduced by lovely columns. The secluded master suite boasts views to the backyard, a walk-in closet and a private bath with a dual-sink vanity, a spa tub and a separate designer shower. A split staircase provides upper-floor access from two directions. A loft overlooks the formal living areas and flows between two bedrooms, another full bath and a cute nook, brightened by dormer windows.
Specifications
Total 2009 sq ft
- Main: 1406
- Second: 603
- Third: 0
- Loft/Bonus: 0
- Basement: 0
- Garage: 0
Rooms
- Beds: 3
- Baths: 2
- 1/2 Bath: 1
- 3/4 Bath: 0
Ceiling Height
- Main:
- Second:
- Third:
- Loft/Bonus:
- Basement:
- Garage:
Details
- Exterior Walls: 2x6
- Garage Type: doubleGarage
- Width: 45'0"
- Depth: 48'4"
Roof
- Max Ridge Height: 26'0"
- Comments: ()
- Primary Pitch: 0/12
- Secondary Pitch: 0/12
Add to Cart
Pricing
– westhomeplanners.com
– westhomeplanners.com
– westhomeplanners.com
[Back to Search Results]

833–493–0942

