Plan No.210051
Functional Layout
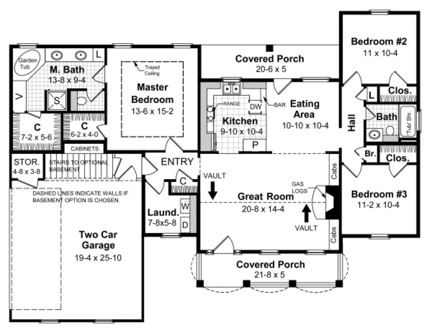
This design provides a very functional split-floorplan layout with many of the features that your family desires. Expansive Master Bedroom and Bath with plenty of storage space in the separate walk-in closets. Large great room with vaulted ceiling and gas log fireplace. Front and rear porches. Open kitchen layout with plenty of counter space for that growing family. Great value with a wide variety of innovative features. Make this your home today!
Specifications
Total 1500 sq ft
- Main: 1500
- Second: 0
- Third: 0
- Loft/Bonus: 0
- Basement: 1500
- Garage: 507
Rooms
- Beds: 3
- Baths: 2
- 1/2 Bath: 0
- 3/4 Bath: 0
Ceiling Height
- Main: 9'0
- Second:
- Third:
- Loft/Bonus:
- Basement: 8'0
- Garage: 10'4
Details
- Exterior Walls: 2x6
- Garage Type: doubleGarage
- Width: 61'0
- Depth: 47'4
Roof
- Max Ridge Height: 22'0
- Comments: ()
- Primary Pitch: 8/12
- Secondary Pitch: 0/12
Add to Cart
Pricing
– westhomeplanners.com
– westhomeplanners.com
– westhomeplanners.com
[Back to Search Results]

833–493–0942

