Plan No.215581
Beautiful Split Bedroom House
Beautiful split bedroom plan house. 3 bedrooms/can be built with 2, 2.5, 3, or 3.5 baths. Great room features 12-foot ceilings, and fireplace with gas logs and transoms above the windows. Great views of great room and back yard from kitchen. Large master bedroom which features jet tub and shower in master bath. Other key features include walk-in pantry, large utility room, wet wear closet, and large garage.
Specifications
Total 1855 sq ft
- Main: 1855
- Second: 0
- Third: 0
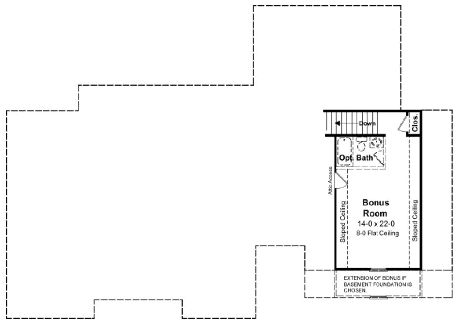
- Loft/Bonus: 0
- Basement: 1855
- Garage: 528
Rooms
- Beds: 3
- Baths: 2
- 1/2 Bath: 1
- 3/4 Bath: 0
Ceiling Height
- Main: 9'0
- Second:
- Third:
- Loft/Bonus:
- Basement: 8'0
- Garage: 10'4
Details
- Exterior Walls: 2x6
- Garage Type: doubleGarage
- Width: 72'8
- Depth: 51'0
Roof
- Max Ridge Height: 23'3
- Comments: ()
- Primary Pitch: 10/12
- Secondary Pitch: 0/12
Add to Cart
Pricing
– westhomeplanners.com
– westhomeplanners.com
– westhomeplanners.com
Kitchen – westhomeplanners.com
– westhomeplanners.com
Master Bath – westhomeplanners.com
Great Room – westhomeplanners.com
[Back to Search Results]

833–493–0942





