Plan No.211081
Spacious and Open
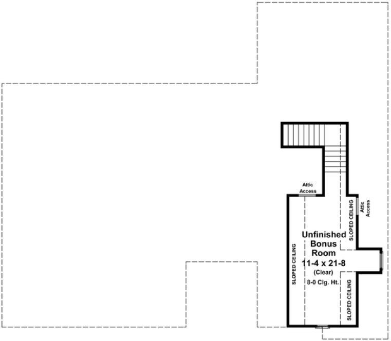
This inviting home has country styling with upscale features. The front and rear covered porches add usable outdoor living space. Great room is vaulted with built in cabinets and gas fireplace. The spacious kitchen has an island with an eating bar. The hall bath is equipped with dual lavatories for convenience. The master bedroom has a raised ceiling and opens into the well equipped bath with dual lavatories, corner tub and walk in closet. There is a shop area off the garage for projects and storage. Future space upstairs could be a playroom, extra bedroom, or just extra storage. The flex space could be used as a home office, dining room, or playroom. This is a very flexible home with lots of options to choose from. ADDITIONAL ROOM SIZES: Main Floor: Great Room=18'-4"x16'-6"; Kitchen=12'-0"x12'-10"; Breakfast Area=12'-0"x9'-8"; Master Bedroom=15'-0"x13'-8"; Master Closet=8'-0"x7'-0"; Master Bath=7'-0"x20'-6"; Bedroom2=12'-8"x11'-0"; Bedroom3=12'-8"x11'-0"; Bath2=8'-6"x8'-0"; Flex Space=12'-6"x11'-0"; Utility=7'-2"x8'-6"; Front Covered Porch=31'-0"x6'-0"; Rear Covered Porch=30'-4"x7'-6"; 2 Car Garage=22'-0"x24'-0"; Storage/Shop=10'-8"x12'-2"; Second Floor: Bonus Room=12'-0"x22'-4"
Specifications
Total 1800 sq ft
- Main: 1800
- Second: 0
- Third: 0
- Loft/Bonus: 302
- Basement: 0
- Garage: 658
Rooms
- Beds: 3
- Baths: 2
- 1/2 Bath: 0
- 3/4 Bath: 0
Ceiling Height
- Main: 9'0-10'0+
- Second:
- Third:
- Loft/Bonus:
- Basement:
- Garage:
Details
- Exterior Walls: 2x4
- Garage Type: 2 Car Garage
- Width: 65'0
- Depth: 56'8
Roof
- Max Ridge Height: 23'6
- Comments: (Main Floor to Peak)
- Primary Pitch: 8/12
- Secondary Pitch: 12/12

833–493–0942


