Plan No.202026
Hillside Friendly
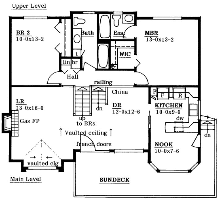
Designed to compensate for as little as 4'-0" and up to 12'-0" of slope, this split is ideal for a hillside lot. Planned to take advantage of a front view, the spaciousness of the living and dining rooms are enhanced greatly by the vaulted ceiling. From the bedroom level you are able to view the floor below. The two bedrooms are a good size and the master suite has its own bath. On basement level #2 there are an additional two bedrooms making for a potential of four bedrooms in total. Beside the roomy foyer is he family room on the entry level separated by french doors.
Specifications
Total 2038 sq ft
- Main: 1176
- Second: 0
- Third: 0
- Loft/Bonus: 0
- Basement: 862
- Garage: 420
Rooms
- Beds: 0
- Baths: 0
- 1/2 Bath: 0
- 3/4 Bath: 0
Ceiling Height
- Main: 8
- Second:
- Third:
- Loft/Bonus:
- Basement: 8'
- Garage:
Details
- Exterior Walls: 2x6
- Garage Type: doubleGarage
- Width: 40'
- Depth: 35'
Roof
- Max Ridge Height:
- Comments: ()
- Primary Pitch: 6/12
- Secondary Pitch: 0/12
Add to Cart
Pricing
– westhomeplanners.com
– westhomeplanners.com
– westhomeplanners.com
[Back to Search Results]

833–493–0942

