Plan No.296202
Specifications
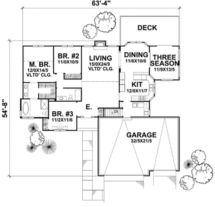
Total 1612 sq ft
- Main: 1612
- Second: 0
- Third: 0
- Loft/Bonus: 0
- Basement: 1445
- Garage: 762
Rooms
- Beds: 3
- Baths: 2
- 1/2 Bath: 0
- 3/4 Bath: 0
Ceiling Height
- Main: 9'0"
- Second:
- Third:
- Loft/Bonus:
- Basement:
- Garage:
Details
- Exterior Walls: 2x4
- Garage Type: doubleGarage
- Width: 64'4"
- Depth: 54'8"
Roof
- Max Ridge Height: 22'0"
- Comments: ()
- Primary Pitch: 8/12
- Secondary Pitch: 10/12
Add to Cart
Pricing
– westhomeplanners.com
– westhomeplanners.com
[Back to Search Results]

833–493–0942
