Plan No.146543
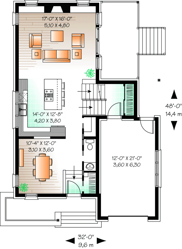
Ceiling at 8'8" on the main level. Superb living room with fireplace, benches and patio door overlooking the rear covered lateral terrace. Kitchen with central island lunch counter and plenty of space including a walk-in pantry. Computer center located in the stairway landing. Two very nice bedrooms on the second level with a walk-in closet in bedroom 1. Well organized full bathroom on that same level with adjacent laundry space.
Specifications
Total 1784 sq ft
- Main: 892
- Second: 892
- Third: 0
- Loft/Bonus: 0
- Basement: 892
- Garage: 252
Rooms
- Beds: 2
- Baths: 1
- 1/2 Bath: 1
- 3/4 Bath: 0
Ceiling Height
- Main: 8'8
- Second: 8'0
- Third:
- Loft/Bonus:
- Basement: 8'0
- Garage: 10'2
Details
- Exterior Walls: 2x6
- Garage Type: singleGarage
- Width: 32'0
- Depth: 48'0
Roof
- Max Ridge Height: 27'3
- Comments: ()
- Primary Pitch: 0/12
- Secondary Pitch: 0/12
Add to Cart
Pricing
Full Rendering – westhomeplanners.com
MAIN Plan – westhomeplanners.com
SECOND Plan – westhomeplanners.com
REAR Elevation – westhomeplanners.com
[Back to Search Results]

833–493–0942


