Plan No.141503
Each unit is 749 finished sq. ft. on the main floor and 749 finished sq. ft. on the basement level for a total of 1498 finished sq. ft. per unit. The total finished area for the building, both units, is 2998 sq. ft.
Specifications
Total 2998 sq ft
- Main: 749
- Second: 0
- Third: 0
- Loft/Bonus: 0
- Basement: 749
- Garage: 0
Rooms
- Beds: 3
- Baths: 1
- 1/2 Bath: 1
- 3/4 Bath: 0
Ceiling Height
- Main: 8'0
- Second:
- Third:
- Loft/Bonus:
- Basement: 8'0
- Garage:
Details
- Exterior Walls: 2x6
- Garage Type:
- Width: 44'0
- Depth: 35'4
Roof
- Max Ridge Height: 25'9
- Comments: ()
- Primary Pitch: 0/12
- Secondary Pitch: 0/12
Add to Cart
Pricing
Full Rendering – westhomeplanners.com
MAIN Plan – westhomeplanners.com
BASEMENT Plan – westhomeplanners.com
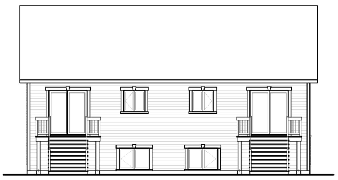
REAR Elevation – westhomeplanners.com
[Back to Search Results]

833–493–0942


