Plan No.290201
Specifications
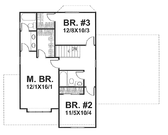
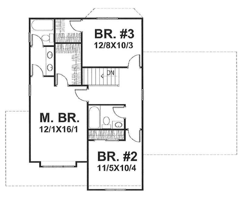
Total 1638 sq ft
- Main: 835
- Second: 803
- Third: 0
- Loft/Bonus: 0
- Basement: 702
- Garage: 440
Rooms
- Beds: 4
- Baths: 3
- 1/2 Bath: 0
- 3/4 Bath: 0
Ceiling Height
- Main: 8'0"
- Second: 8'0"
- Third:
- Loft/Bonus:
- Basement:
- Garage:
Details
- Exterior Walls: 2x4
- Garage Type: doubleGarage
- Width: 44'4"
- Depth: 38'0"
Roof
- Max Ridge Height: 28'0"
- Comments: ()
- Primary Pitch: 0/12
- Secondary Pitch: 0/12
Add to Cart
Pricing
– westhomeplanners.com
– westhomeplanners.com
– westhomeplanners.com
[Back to Search Results]

833–493–0942

