Plan No.148133
This plan is available for Canadian Customers only
Specifications
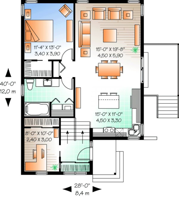
Total 1879 sq ft
- Main: 1027
- Second: 0
- Third: 0
- Loft/Bonus: 0
- Basement: 852
- Garage: 0
Rooms
- Beds: 3
- Baths: 2
- 1/2 Bath: 0
- 3/4 Bath: 0
Ceiling Height
- Main: 8'0
- Second:
- Third:
- Loft/Bonus:
- Basement: 8'0
- Garage:
Details
- Exterior Walls: 2x6
- Garage Type:
- Width: 28'0
- Depth: 40'0
Roof
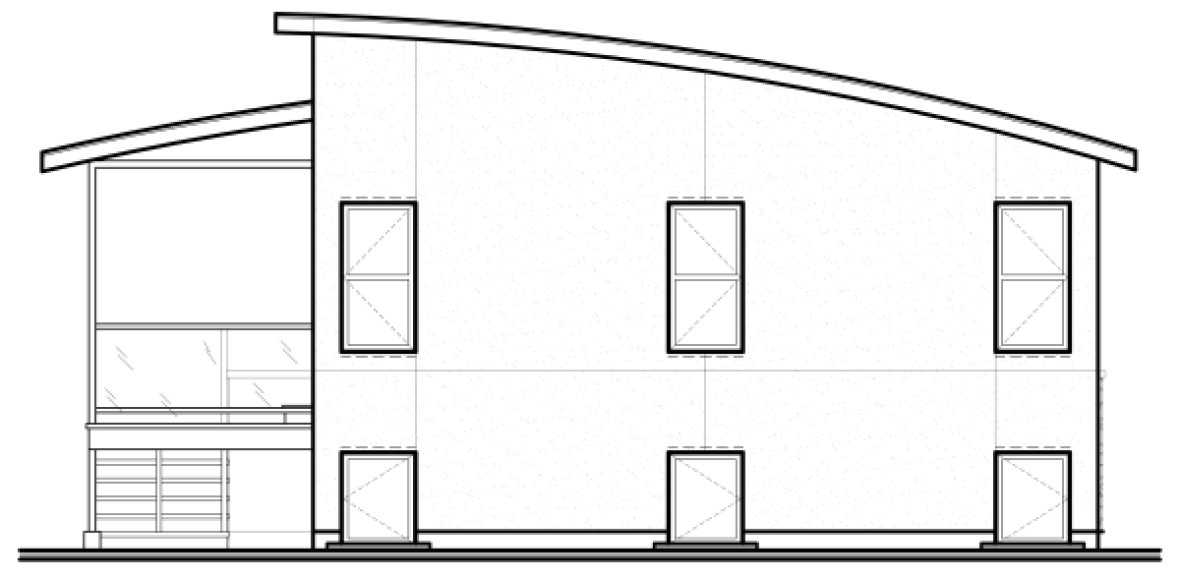
- Max Ridge Height: 19'2
- Comments: ()
- Primary Pitch: 0/12
- Secondary Pitch: 0/12
Add to Cart
Pricing
– westhomeplanners.com
– westhomeplanners.com
– westhomeplanners.com
– westhomeplanners.com
[Back to Search Results]

833–493–0942


