Plan No.368069
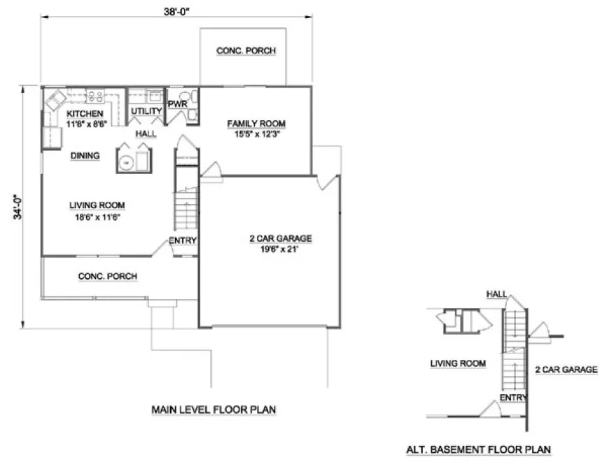
Features four bedrooms, two full baths, and one half bath. A large Family Room with fireplace features sliding doors leading to the Patio. The efficient Kitchen/Dining room flows into a spacious Living Room for convenient entertaining. The Laundry and half bath are conveniently located next to the Kitchen. The Master Suite is complete with a private Bath and walk-in Closet
Specifications
Total 1550 sq ft
- Main: 736
- Second: 814
- Third: 0
- Loft/Bonus: 0
- Basement: 0
- Garage: 409
Rooms
- Beds: 4
- Baths: 2
- 1/2 Bath: 1
- 3/4 Bath: 0
Ceiling Height
- Main: 8'0
- Second: 8'0
- Third:
- Loft/Bonus:
- Basement:
- Garage:
Details
- Exterior Walls: 2x4
- Garage Type: doubleGarage
- Width: 42'0
- Depth: 34'0
Roof
- Max Ridge Height: 26'2
- Comments: ()
- Primary Pitch: 7/12
- Secondary Pitch: 0/12
Add to Cart
Pricing
– westhomeplanners.com
– westhomeplanners.com
– westhomeplanners.com
[Back to Search Results]

833–493–0942

