Plan No.365049
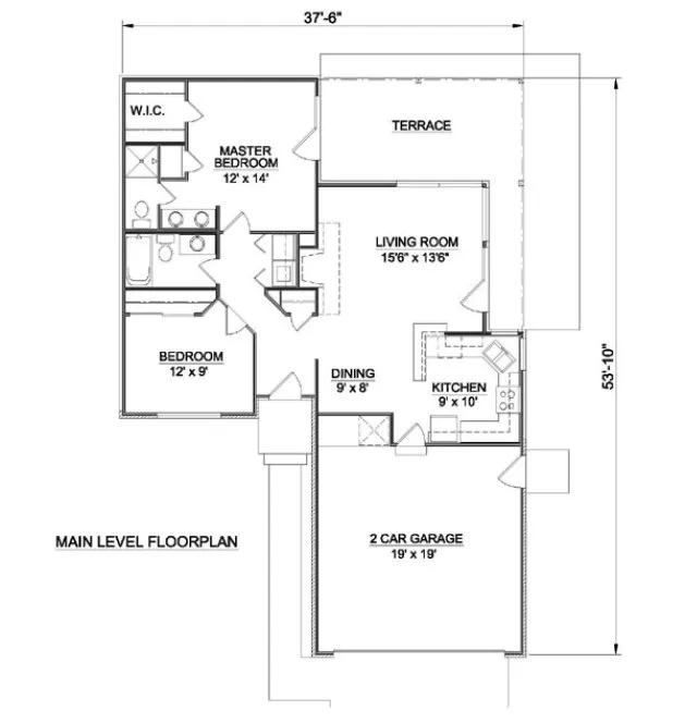
Features 2 bedrooms and two baths. A tiled entry leading to an open Dining/Living Room area with optional fireplace and atrium door leading to the Terrace. The efficient Kitchen features a corner window and eating bar overlooking the Living Room. The Master Bedroom is complete with a walk-in closet and private bath. The Laundry is conveniently located in the bedroom area.
Specifications
Total 970 sq ft
- Main: 970
- Second: 0
- Third: 0
- Loft/Bonus: 0
- Basement: 0
- Garage: 361
Rooms
- Beds: 2
- Baths: 2
- 1/2 Bath: 0
- 3/4 Bath: 0
Ceiling Height
- Main: 8'0
- Second:
- Third:
- Loft/Bonus:
- Basement:
- Garage:
Details
- Exterior Walls: 2x4
- Garage Type: doubleGarage
- Width: 37'6
- Depth: 53'10
Roof
- Max Ridge Height: 17'5
- Comments: ()
- Primary Pitch: 6/12
- Secondary Pitch: 0/12
Add to Cart
Pricing
– westhomeplanners.com
– westhomeplanners.com
[Back to Search Results]

833–493–0942
