Plan No.365139
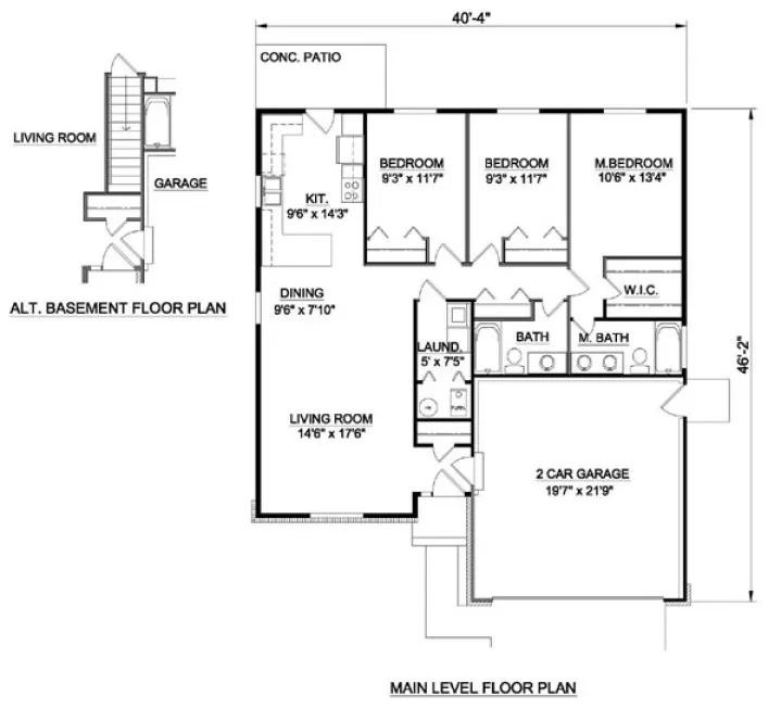
Features three bedrooms and two full baths. An open layout between the Living Room, Dining Room and Kitchen gives a more spacious feeling to these areas. The well-equipped Kitchen with a double sink has a peninsula counter may be used as an eating bar. The Master Suite includes a walk-in closet and a private bath with a double vanity. Two additional bedrooms that have ample closet space and share a full hall bath.
Specifications
Total 1274 sq ft
- Main: 1274
- Second: 0
- Third: 0
- Loft/Bonus: 0
- Basement: 0
- Garage: 400
Rooms
- Beds: 4
- Baths: 2
- 1/2 Bath: 1
- 3/4 Bath: 0
Ceiling Height
- Main: 8'0"
- Second:
- Third:
- Loft/Bonus:
- Basement:
- Garage:
Details
- Exterior Walls: 2x4
- Garage Type: doubleGarage
- Width: 40'4"
- Depth: 46'2"
Roof
- Max Ridge Height: 18'0"
- Comments: ()
- Primary Pitch: 5/12
- Secondary Pitch: 0/12
Add to Cart
Pricing
– westhomeplanners.com
– westhomeplanners.com
[Back to Search Results]

833–493–0942
