Plan No.364129
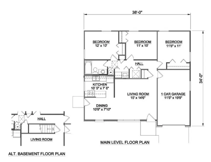
Features three bedrooms and an attached garage. The efficient Kitchen and open counter connect to the Dining area. The Living Room flows into the Dining area creating an open feeling to the space. Three large bedrooms with ample sized closets share the full hall bath. The convenient laundry is located in hall of the bedroom wing.
Specifications
Total 1008 sq ft
- Main: 1008
- Second: 0
- Third: 0
- Loft/Bonus: 0
- Basement: 0
- Garage: 258
Rooms
- Beds: 3
- Baths: 1
- 1/2 Bath: 0
- 3/4 Bath: 0
Ceiling Height
- Main: 8'0"
- Second:
- Third:
- Loft/Bonus:
- Basement:
- Garage:
Details
- Exterior Walls: 2x4
- Garage Type: singleGarage
- Width: 38'0"
- Depth: 34'0"
Roof
- Max Ridge Height: 18'0"
- Comments: ()
- Primary Pitch: 6/12
- Secondary Pitch: 0/12
Add to Cart
Pricing
– westhomeplanners.com
– westhomeplanners.com
[Back to Search Results]

833–493–0942
