Plan No.364501
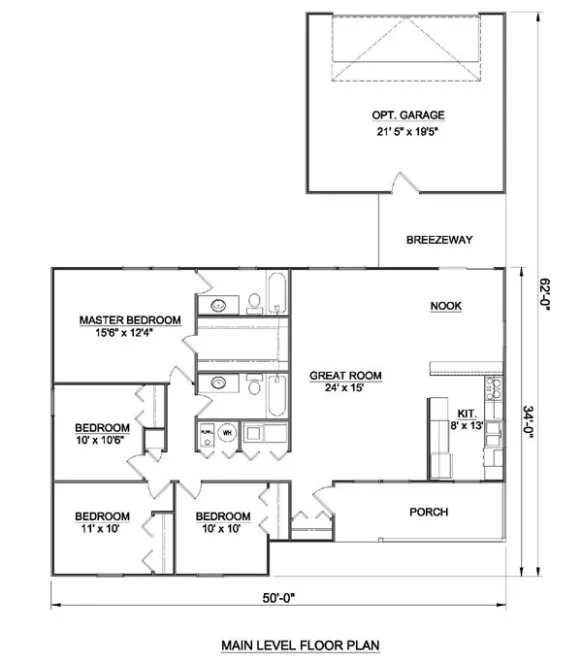
Features four bedrooms and two full baths. The Large Front Porch leads to a spacious Great Room that flows into the Dining Area. The Galley Kitchen is complete with a Snack Bar overlooking the Dining Area.. The Master Bedroom features a walk-in Closet and a private Bath. The Rear Entry Garage is connected to the house by a Breezeway.
Specifications
Total 1144 sq ft
- Main: 1480
- Second: 0
- Third: 0
- Loft/Bonus: 0
- Basement: 0
- Garage: 419
Rooms
- Beds: 4
- Baths: 2
- 1/2 Bath: 0
- 3/4 Bath: 0
Ceiling Height
- Main: 8'0
- Second:
- Third:
- Loft/Bonus:
- Basement:
- Garage:
Details
- Exterior Walls: 2x4
- Garage Type: singleGarage
- Width: 44'0
- Depth: 54'0
Roof
- Max Ridge Height: 17'6
- Comments: ()
- Primary Pitch: 6/12
- Secondary Pitch: 0/12
Add to Cart
Pricing
– westhomeplanners.com
– westhomeplanners.com
[Back to Search Results]

833–493–0942
