Plan No.361501
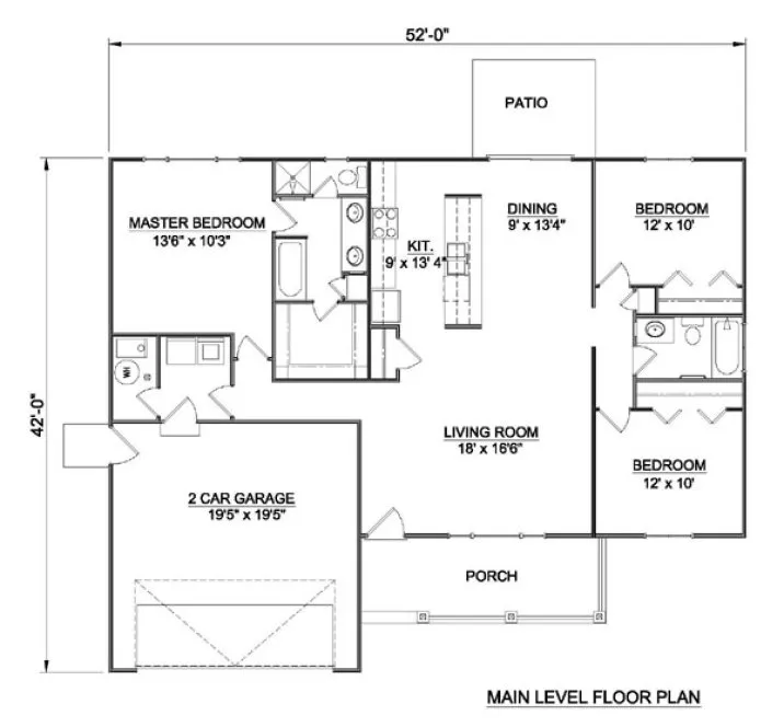
Features three bedrooms and two full baths. This home features a split bedroom floor plan. A Great Room style Living Room flows into the Dining area and Kitchen for an open feel. Sliding glass doors connect the Dining Room to the Patio for effortless outdoor entertaining. The isolated Master Bedroom features a luxury Bath with a large walk-in Closet. The two secondary Bedrooms share a full hall bath. The Laundry/Mud Room leads to the 2-Car Garage.
Specifications
Total 1423 sq ft
- Main: 1423
- Second: 0
- Third: 0
- Loft/Bonus: 0
- Basement: 0
- Garage: 380
Rooms
- Beds: 3
- Baths: 2
- 1/2 Bath: 0
- 3/4 Bath: 0
Ceiling Height
- Main: 8'0
- Second:
- Third:
- Loft/Bonus:
- Basement:
- Garage:
Details
- Exterior Walls: 2x4
- Garage Type: singleGarage
- Width: 52'0
- Depth: 42'0
Roof
- Max Ridge Height: 19'4
- Comments: ()
- Primary Pitch: 6/12
- Secondary Pitch: 0/12
Add to Cart
Pricing
– westhomeplanners.com
– westhomeplanners.com
[Back to Search Results]

833–493–0942
