Plan No.299002
Vaulted Livingroom
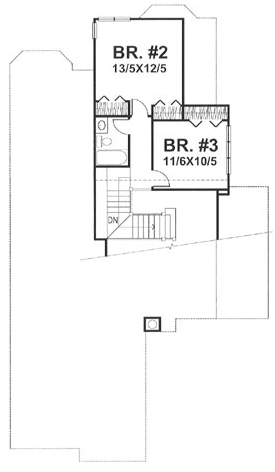
Tall, Colonial-style columns introduce this gracious two-story home, a design reminiscent of yesteryear. Just off the foyer, the versatile den with adjoins a full bath so the space can double as a guest- or in-law suite. A wall of windows lines the back of the home, where the kitchen/breakfast room and family room are open to each other to create a comfortable space. Four bedrooms are on the upper floor; double doors lead into the master bedroom, with its own bath and a hug walk-in closet.
Specifications
Total 1941 sq ft
- Main: 1494
- Second: 447
- Third: 0
- Loft/Bonus: 0
- Basement: 1494
- Garage: 0
Rooms
- Beds: 3
- Baths: 2
- 1/2 Bath: 1
- 3/4 Bath: 0
Ceiling Height
- Main: 9'0
- Second: 8'0
- Third:
- Loft/Bonus:
- Basement: 8'0
- Garage:
Details
- Exterior Walls: 2x4
- Garage Type: doubleGarage
- Width: 40'0
- Depth: 72'0
Roof
- Max Ridge Height: 26'0
- Comments: ()
- Primary Pitch: 8/12
- Secondary Pitch: 0/12
Add to Cart
Pricing
Full Rendering – westhomeplanners.com
MAIN Plan – westhomeplanners.com
SECOND Plan – westhomeplanners.com
[Back to Search Results]

833–493–0942

