Plan No.360401
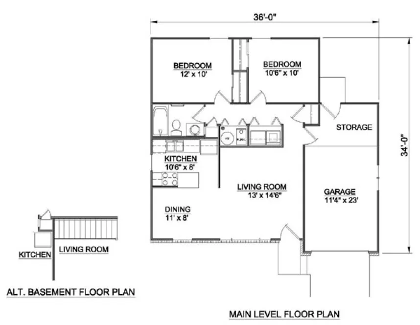
Features two bedrooms and one full bath. This economical home has a covered Front Porch leading into the Living Room. An efficient Galley Kitchen is located next to the Dining area. The large Living Room flows into the Dining area. A large Storage area is located in the Garage.
Specifications
Total 810 sq ft
- Main: 810
- Second: 0
- Third: 0
- Loft/Bonus: 0
- Basement: 0
- Garage: 260
Rooms
- Beds: 2
- Baths: 1
- 1/2 Bath: 0
- 3/4 Bath: 0
Ceiling Height
- Main: 8'0
- Second:
- Third:
- Loft/Bonus:
- Basement:
- Garage:
Details
- Exterior Walls: 2x4
- Garage Type: singleGarage
- Width: 36'0
- Depth: 34'0
Roof
- Max Ridge Height: 16'11
- Comments: ()
- Primary Pitch: 5/12
- Secondary Pitch: 0/12
Add to Cart
Pricing
– westhomeplanners.com
– westhomeplanners.com
[Back to Search Results]

833–493–0942
