Plan No.361301
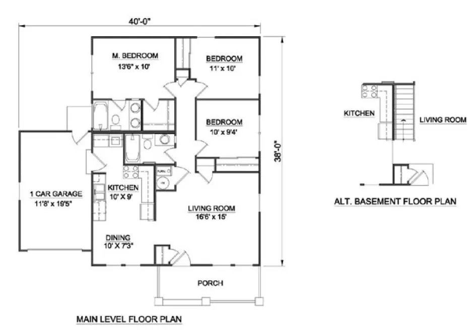
Features three bedrooms and two full baths. This Craftsman style home welcomes visitors with an Old Fashioned Front Porch. The Dining area is conveniently next to the efficient Kitchen. A Mud/Laundry room is located off the Kitchen. The Master Bedroom is complete with a walk-in-closet and private bath.
Specifications
Total 1064 sq ft
- Main: 1064
- Second: 0
- Third: 0
- Loft/Bonus: 0
- Basement: 0
- Garage: 227
Rooms
- Beds: 3
- Baths: 2
- 1/2 Bath: 0
- 3/4 Bath: 0
Ceiling Height
- Main: 8'0
- Second:
- Third:
- Loft/Bonus:
- Basement:
- Garage:
Details
- Exterior Walls: 2x6
- Garage Type: singleGarage
- Width: 40'0
- Depth: 38'0
Roof
- Max Ridge Height: 17'0
- Comments: ()
- Primary Pitch: 6/12
- Secondary Pitch: 0/12
Add to Cart
Pricing
– westhomeplanners.com
– westhomeplanners.com
[Back to Search Results]

833–493–0942
